skip to primary navigation
skip to content
Study at Cambridge
About the University
Research at Cambridge
Search site
Home
Study at Cambridge
Undergraduate
Courses
Applying
Events and open days
Fees and finance
Student blogs and videos
Graduate
Why Cambridge
Qualifications directory
How to apply
Fees and funding
Frequently asked questions
International students
Continuing education
Executive and professional education
Courses in education
About the University
How the University and Colleges work
History
Visiting the University
Term dates and calendars
Map
For media
Video and audio
Find an expert
Publications
International Cambridge
News
Events
Public engagement
Jobs
Giving to Cambridge
Research at Cambridge
For staff
For current students
For alumni
For business
Colleges & departments
Libraries & facilities
Museums & collections
Email & phone search
Log in
Register
Home
Accommodation Service
Find a home
University accommodation
The Properties, and Repa…
Rubicon Turing Way Cambr…
Turing Way 2 Bedroom Apa…
Accommodation Service
Studying at Cambridge
Home
Visiting Cambridge
Find a home
Let your property
Relocation service
About us
Contact us
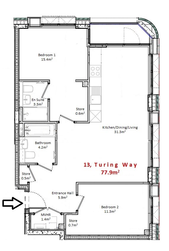
Turing Way 2 Bedroom Apartment Floorplan
Accommodation Service
Find a home
University accommodation
The Properties, and Repairs & Maintenance
Rubicon Turing Way Cambridge
Turing Way Studio Apartment Floorplan
Turing Way 1-Bedroom Apartment Floorplan
Turing Way 2 Bedroom Apartment Floorplan
Turing Way 3-Bedroom Duplex Apartment Floorplan
Eddington (North West Cambridge Development)
George Nuttall Close
Southacre Drive
West Cambridge site
Other University properties
13 Turing Way (77.9m2), in Block E of the development, is a NE & SE-facing, ground-floor, 2-bed apartment with a terrace.